移住定住促進住宅「ヴィーナス・ラーチ たてしな」入居者募集します
募集期間について
募集期間
令和8年2月16日月曜日から令和8年3月6日金曜日
申込書類の提出は、令和8年3月6日金曜日必着です。
移住定住促進住宅の概要
立科町では、都市部などからの移住を希望される方や、町内での定住をお考えの方に向けて「移住定住促進住宅」の入居者を募集します。住まいの確保を通じて、立科町での新しい暮らしのスタートと、安心して住み続けられる環境づくりを支援し、過疎化の抑制と地域の活性化につなげていきます。
定住促進住宅位置図
定住促進住宅区画図

募集戸数について
A棟(木造平屋建・世帯規模目安1人又は2人)「対象:単身・夫婦」
募集戸数:5戸
家賃:46,000円
敷地面積:約300平方メートル(約90坪)
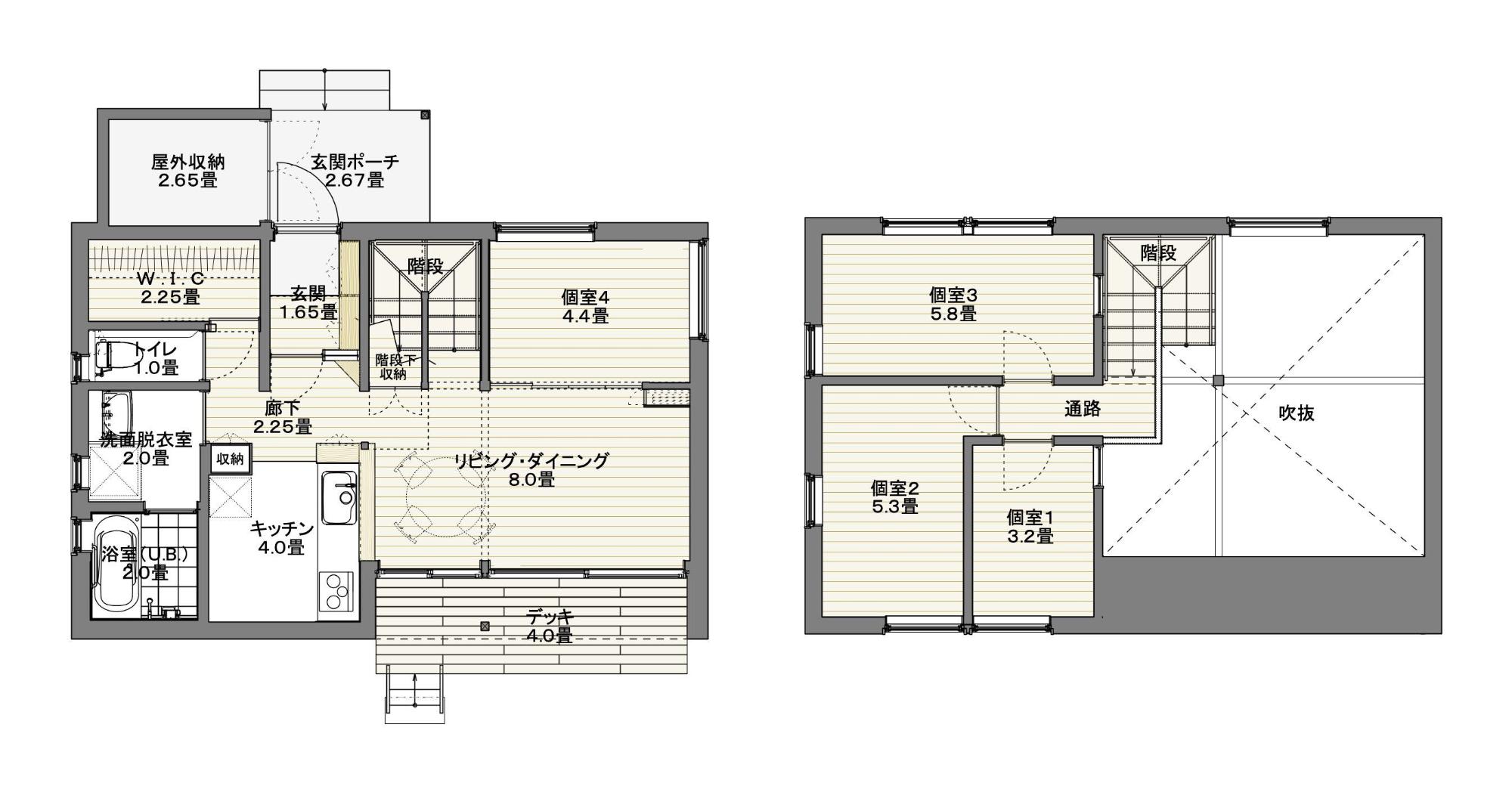
延床面積:54.37平方メートル
間取り:1LDK 世帯規模目安:1人〜2人
B棟(木造平屋建・世帯規模目安2人以上4人程度)「対象:夫婦・子育て世帯等」
募集戸数:3戸
家賃:60,000円
敷地面積:約300平方メートル(約90坪)
延床面積:78.93平方メートル
間取り:3LDK 世帯規模目安:2人〜4人
C棟(木造2階建・世帯規模目安4人以上5人程度)「対象:子育て世帯等」
募集戸数:2戸
家賃:64,000円
敷地面積:約300平方メートル(約90坪)
延床面積:84.25平方メートル
間取り:4LDK 世帯規模目安:4人〜5人
注意事項
- 子育て世帯の家賃減額は、入居者又は同居者が扶養する子(満18歳到達後最初の3月31日まで)1人につき、月額3,000円を減額します。適用開始は、原則として必要書類の受理日の属する月の翌月分からです。
- 世帯規模の目安は、乳幼児の有無等の個別事情を考慮して柔軟に取り扱います。
- 敷地面積は、各棟で異なり、付随駐車場(乗用車2台)を含みます。
- 原則として、入居後の月額家賃の変更はありません。ただし大規模改修等、やむを得ない場合は見直すことがあります。
入居資格・入居期間・入居選考等について
入居資格
次の全てに該当する方が対象です。
(1)次のいずれかに該当する方
- 申込時点で町外に住所があり、転入して立科町に居住しようとする方
- 町外から転入し、現に立科町に居住して5年以内で、引き続き町に居住する意思がある方
- 申込時点で継続して5年以上立科町に居住しており、引き続き町内に定住する意思がある方
(2)促進住宅に住民登録できる方
(3)各棟の世帯構成の目安に適合する方
(4)入居期間中及び期間満了後も、町内に定住する意思・意欲がある方
(5)市町村税等の公租公課を滞納していない方
(6)暴力団員ではない方(暴力団対策法第2条第6号)
注1:町長が特に認める場合は、一部要件を適用外とすることがあります。
注2:「継続して5年以上立科町に居住」とは、住民登録上、立科町に5年以上連続して住所を有していることをいいます。やむを得ない事情がある場合は、町長が個別に判断します。
入居開始
令和8年4月1日以降(入居条件通知書で指定します。)
入居期間
A棟・B棟・C棟とも入居日から最長5年です。 町長が特に認める場合は、3年を限度に延長できます。
注:町内で定住先を確保した場合は、期間によらず明渡しに努めていただきます。
入居者の選考
入居者の選考は、条例に基づく優先事項の他、家族構成、立科町への移住及び定住の意欲、地域との協調性、その他事案を総合的に勘案して行います。
選考は点数評価し、上位点数の方より入居可能とします。詳細は、入居者募集要項をご確認ください。
入居について
- 促進住宅は適正に使用及び維持してください。必要な原状回復や損害賠償が生じる場合は、入居者の負担となります。
- 主な設備:水洗トイレ、浴室(ユニットバス)・シャワー、キッチン(シンク・IHレンジ)、洗面台、洗濯機置き場、給湯器(プロパンガス)、カーテンレール(1箇所のみ)
- エアコン機器、テレビアンテナ等の設置及び撤去は、入居者ご自身の費用負担及び対応となります。また、ガス衣類乾燥機も入居者負担により設置可能です。
- ペットの飼育は、原則禁止(犬、猫等)。観賞用魚類及び小鳥等の小動物は、水槽又はゲージ内でのみ可。補助犬は除きます(届出及び遵守事項あり)。
- 共用部分は、禁煙です。住居内喫煙に伴う汚損等の原状回復費用は、入居者負担となります。
その他、入居後の主なルールについては、入居者募集要項をご一読ください。
入居者募集要項
入居申込みについて
申込み方法
移住定住促進住宅「ヴィーナス・ラーチ たてしな」の入居申込みは、郵送又は持参、オンライン申請により申込みができます。
申込期間内に提出書類を提出してください。
申込み期間
令和8年2月16日月曜日から令和8年3月6日金曜日まで
提出書類
- 立科町移住定住促進住宅入居申込書(様式第1号)
- 入居申込者及び同居予定者の住民票の写し(続柄・生年月日記載)
- 入居申込者及び同居予定者の納税証明書
- 入居申込者の直近の収入が分かる書類(所得証明書、源泉徴収票等)
- 同居予定者が親族であることの確認書類(必要に応じて)
- その他、町長が必要と認める書類
立科町移住定住促進住宅入居申込書
立科町移住定住促進住宅入居申込書(様式第1号) (Wordファイル: 26.3KB)
提出先
〒384-2305
長野県北佐久郡立科町大字芦田2532
立科町役場 建設環境課 建設係あて
- 窓口に持ち込みの場合は、申込期間中の平日午前8時30分から午後5時15分までに提出ください。
- 郵送の場合は、令和8年3月6日金曜日必着です。
- 各種お問い合わせは、平日午前8時30分から午後5時15分の間にお願いします。
- 問合せ先 立科町役場 建設環境課 建設係(直通 0267-88-8409)
--
オンライン申請について
下記のながの電子申請サービスから入居申込みができます。
なお、申請に係る添付書類については、郵送等により提出していただく必要があるため、提出期限にご注意ください。郵送の場合は、令和8年3月6日金曜日必着です。
ながの電子申請サービス
この記事に関するお問い合わせ先
- みなさまのご意見をお聞かせください
-
ご意見ありがとうございました。
更新日:2026年02月16日